For Sale 2 Bed House - Townhouse 

Oxford Street, Chepstow £274,950

Property Features

Location:
Oxford Street, Chepstow, NP16 5PQ
Reception Rooms:1
Bedrooms:2
Bathrooms:2
Council Tax Band:TBC
Tenure:Freehold

Contact Agent

Moon & Co
10 Bank Street
Chepstow
Monmouthshire
NP16 5EN
Tel: 01291 629292
sales@thinkmoon.co.uk

About the Property

A stylish new town centre development of contemporary townhouses. This exciting new development offers a collection of 1,2 and 3 bedrooms townhouses, perfectly positioned in the heart of Chepstow’s town centre and within easy walking distance of local shops, cafes, transport links and amenities.

Designed with modern living in mind, each home features contemporary architecture, clean lines and high-quality finishes throughout. Bright open plan living spaces form the focal point of each property, enhanced by generous windows that flood the interiors with natural light.

    Property Photos

    Property Details

    THE ONE BEDROOM TOWNHOUSE

    Provides smart, low-maintenance home ideal for first-time buyers or professionals;

    TWO BEDROOM TOWNHOUSES

    Offer flexible living with spacious layouts, ideal for couples or growing household;

    THREE BEDROOM TOWNHOUSES

    Are perfectly suited to families, featuring generous living area, multiple bathrooms and private outdoor space.

    All homes benefit from sleek fitted kitchens, modern bathrooms, neutral décor and quality flooring, creating timeless contemporary feel ready for immediate occupation. The development’s attractive streetscape and central location make it a highly desirable opportunity for owner-occupiers and investors alike.

    PARKING

    Parking permit at the nearby car park is available through Monmouthshire County Council approximately £83 per annum. Parking is also available on Upper Nelson Street between 6pm and 8am.

    AGENTS NOTE

    Please note that the photographs used for this advertisement are computer rendered.

    SERVICES

    All mains services are connected, to include mains gas central heating.

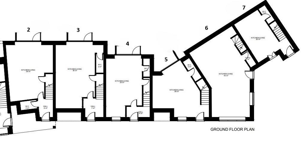
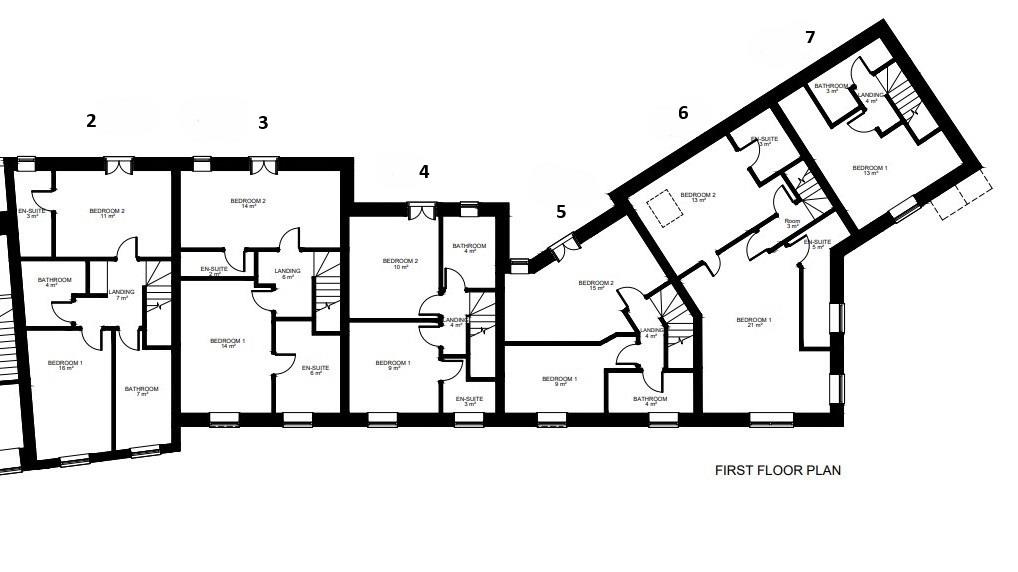
    Floorplans

    Location Map

    Open in Google Maps

    Enquire / Book Viewing

    Contacting Moon & Co
    10 Bank Street
    Chepstow
    Monmouthshire
    NP16 5EN
    Tel: 01291 629292
    sales@thinkmoon.co.uk
    • arrange a viewing
    • arrange a valuation
    • be sent further property details
    • register for property updates

    Contact Details: